Data de livrare: Luni, 09.03.2026
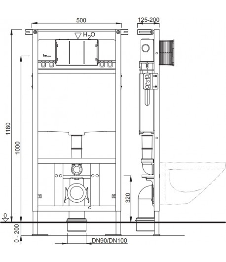
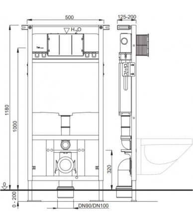
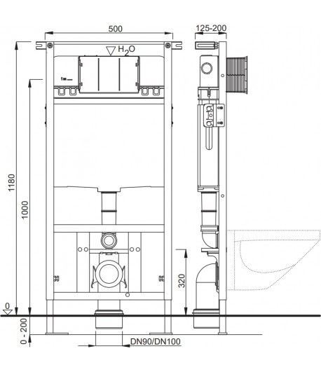
Rezervorul încastrat cu cadru metalic Schwab Duplo WC 199 reprezintă o soluție modernă și fiabilă pentru amenajarea băilor contemporane. Conceput pentru montaj suspendat, acest sistem oferă stabilitate ridicată, funcționare silențioasă și un design discret, perfect integrat în perete.
Construcția robustă din oțel galvanizat asigură rezistență în timp și suportă fără probleme utilizarea intensivă, fiind ideal atât pentru spații rezidențiale, cât și pentru proiecte comerciale. Rezervorul este prevăzut cu sistem de dublă acționare (3/6 litri), contribuind la economisirea apei și la eficiență sporită în utilizare.
Cadru metalic solid, cu rezistență mare la încărcare
Rezervor izolat anticondens și antifonic
Sistem de dublă spălare pentru consum optim de apă
Compatibil cu vase WC suspendate standard
Montaj rapid și reglaje precise pe înălțime
Acces facil pentru mentenanță prin clapeta de acționare
Tehnologia utilizată de Schwab garantează fiabilitate pe termen lung și funcționare silențioasă, oferind confort sporit în utilizarea zilnică. Sistemul este proiectat pentru instalare în pereți din zidărie sau în structuri de tip gips-carton, fiind versatil și adaptabil diverselor configurații de baie.
Montare: Incastrat
Volum: spălare reglabil (spalare mare 4.5-9 L, spalare mica 2.5-4.5 L)
Racord: G 1/2
Tip produs: Rezervor incastrat wc
Altele: Materiale de instalare și fixare incluse.
Suport clienti Oricând de Luni pana Vineri - intre orele 09:00 - 17:00 (exceptând sărbătorile legale)
0371232595 comenzi@foglia.ro